Eladó családi ház Szeged 127 500 000 Ft

Leírás

Csak nálam elérhető az ingatlan!

4 szobás saját fürdőszobákkal épített 150 m2-es tégla építésű családi ház 518 m2-es telken Szegeden várja leendő tulaját.

Ajánlom fiatal családok részére illetve a kialakításból adódóan apartman bérbeadásra. A ház elrendezése ideális. Minden helyiség külön nyíló és arányos, jól kihasználható terekkel rendelkezik.

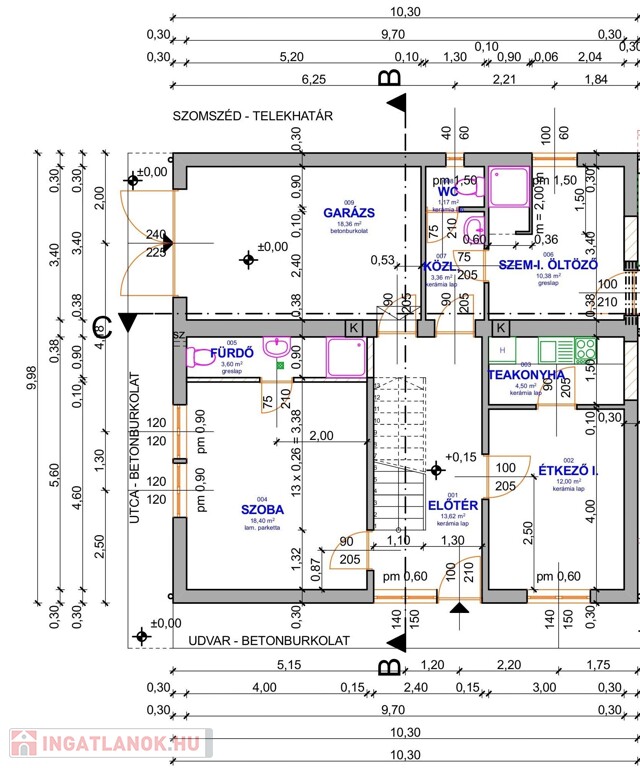
elrendezése:

földszinten

- szoba 18 m2
- garázs 18 m2
- teakonyha 5 m2
- étkező 12 m2
- közlekedő és wc 5 m2
- előtér 14 m2
- konyha- kazánház 10 m2

emeleten:

- szoba+ fürdőszoba 22 m2
- szoba+ fürdőszoba 24 m2
- szoba+ fürdőszoba 19 m2
- takaritószer tároló 3,6 m2
- közlekedő 9,6 m2
- erkély 5 m2
Az épület két bejárattal rendelkezik és a garázs felől is megközelithető.

Az udvar ház közeli része térkövezve. Udvaron fedett kiülők és háttérvilágitás nyújt kellemes hangulatot. A füvesített hátsó udvar, virágágyás és csobogó tovább emeli a szinvonalát.

A ház kertvárosi részen tégla építési móddal épült. Az ingatlan folyamatos felújításon esett át.

Teljesen elszeparált kölön bejáratokkal rendelkező saját fürdővel felszereltek ezáltal alkalmas albérletezésre.
Az udvarba elektromos tolókapun keresztül lehet beállni.

Műszaki információk:

- központi fűtés radiátoros hőleadással
- szobánként klíma biztosítja a nyári hűtést.( 2 éve szerelve)
- 3x20 amperes hálózat
- műanyag és fa hőszigetelt nyilászárók redőnnyel szerelve.
- az épület 6 cm-es hőszigeteléssel ellátva
- Az ingatlan riasztórendszerrel biztosítva
- a garázs elektromos billenőkapuval szerelve

A falak festettek.
Melegvízet szobánként villanybojler biztosítja.

A ház rendezett, külső és belső homlokzata megfelelő állapotú. Száraz falak kívűl-belűl.

Költségek:

gáz: 7.000 Ft/hó
villany: 13.000 Ft/hó
víz: 50.000 Ft/2 hónap
Az apartman áprilistól szeptemberig folyamatosan vendéggel biztosítva,de akár egész évben is kiadható.
Csendes utcában található. A vendégek osztályozása 9,8 ! (szállás.hu)

Környék, ellátottság:

A környék kiválóan ellátott, minden korosztály könnyen megtalálhatja a számára megfelelő bevásárlási és kikapcsolódási lehetőséget. Játszótér, óvoda, iskola, patika, boltok, orvosi rendelő található.
Az ingatlan ára tartalmazza a teljes felszerelést .

Közlekedés:

Busz: 36 , 77 , 67Y

Finanszírozás:

Cégünk pénzügyi partnerével vállaljuk független hitel és biztosítás teljes körű ügyintézését a legjobb konstrukcióért támogatások igénylésével.

Az adásvételhez a tulajdonos 10% foglalót kér.
Teljes kifizetés után birtokba vehető.

Ha bármilyen kérdésük van, hívjanak bármikor bizalommal!

Ezúton tájékoztatjuk, hogy Ön, mint érdeklődő, a hirdetésben megjelölt telefonszám felhívásával hozzájárul személyes adatai így különösen neve és telefonszáma -, a hirdetést feladó Kaponya Zoltán e.v. általi - biztonságos és körültekintő - kezeléséhez, nyilvántartásához. E körben, az alábbi linken megismerheti az adatkezelési tájékoztatót.
immo1.hu/adatvédelem

Adatbázisunkban további több ezer ingatlanból választhat, hívjon bizalommal, hogy megtaláljuk a legmegfelelőbbet! Hitelre van szüksége? Teljes körű és díjmentes hitelügyintézéssel, biztosításkötéssel áll rendelkezésére szakértő kollégánk. Kérje személyre szabott ajánlatunkat!

Ezúton tájékoztatjuk, hogy Ön mint érdeklődő, a hirdetésben megjelölt telefonszám felhívásával hozzájárul személyes adatai így különösen neve és telefonszáma -, a hirdetést feladó Kaponya Zoltán e.v. általi - biztonságos és körültekintő - kezeléséhez, nyilvántartásához. További információt Immo1 portálunk adatvédelmi aloldalán talál

Családi ház részletei

Ár: 127 500 000 Ft
Méret: 150 négyzetméter
Azonosító: 11586765
Telek: 518 négyzetméter
Ingatlan állapota: Felújított
Jelleg: családi ház
Építőanyag: Tégla
Fűtés jellege: Központi
Fűtés módja: Gáz
Komfort fokozat: Dupla komfort
Elhelyezkedés: Utcafronti
Szintek száma: 2 szint
Bútorozott: Bútorozott
Egész szobák: 4
Fél szobák: 1

Egyéb jellemzők

  • Beépíthető tetőtér
  • Csatorna
  • Garázs
  • Kábel TV
  • Melléképület
  • Padlás
  • Parketta
  • Pince
  • Terasz